
We did it! Check out our Airbnb Posting


Learning to live our best lives. Exploring the many paths to financial happiness.

We are still catching up from repairing all the lovely things we found beneath the layers and old drywall. We didn’t get to the tile, but we are very close. Kasey spent a lot of time in the bathroom this week fixing plumbing, bathroom fans, GFI outlets and getting new hardy backer wallboard up!
Continue reading “Euclid Street Airbnb Week 3: Bathroom Basics and Kitchen Backsplash”Demo week is done! I think we got through it in good shape. We had only a few unwelcome discoveries. It looks like at one point in time the sink leaked and caused some water damage and mold. We decided to move the kitchen sink and remove the drywall behind it, just to play it safe. There is a silver lining though; To access the space better, Kasey took down the overhead cabinets and it turns out we really liked how it opened up the kitchen space. We decided we are going to tile the entire wall and do floating shelves in place of the over sink cabinets. The sink was also built out 4 inches to allow for cabinet space, so we will gain 4 inches of room back!
But wait! We’re not done yet! We had some more bad news in the bathroom. The 2x4s behind the tile in the shower were completely dry rotted at the base. We will have to replace them all. Luckily for us, they aren’t load bearing, they were just there to support the tile. Kasey redid some sketch wiring and had to take out a bathroom fan just blowing into the floor rafters.
While the demo discoveries definitely added to the list, to be honest, its exactly what we expected. You really just don’t know when you’re popping the lid off of things and you have to be flexible.
Continue reading “Euclid Airbnb Week 2: Demo Days”Week 1 is behind us! So far we are 100% on track. Below is the check list and the pictures of our progress! We got all of our hobby stuff out of the “airbnb-to-be” space and into their new homes!
WEEK 1: Wine Room and Workshop Displacement

As true to my nature, I put together a few lists for this completion of this airbnb project. When we renovated our 1870’s home several years back, we found how helpful it is to make a list and to have a master plan. It is very important to celebrate your little wins, so write it down and cross it off. With reno it always gets worse before it gets better, so having a visual to show that you are moving forward is crucial for morale. It’s also important to make sure everything is getting done it the right order and writing it out helps get things straight.
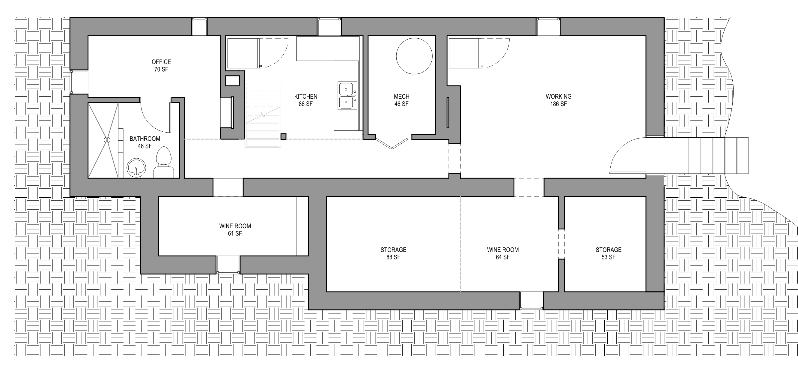
For this project we are aggressively projecting 5 weeks. Kasey’s new availability to make this a full time project, is what makes this possible. The high level steps are below as well as the floor plans currently and with reno (Shout out to my sister Sara for putting the floor plans together! A perk to having an architectural designer in the family)

